North Americas Premier Source for Specialty Trailers
FAMILY OWNED & OPERATED SINCE 2014 — NORTH AMERICA’S MOST TRUSTED SPECIALTY TRAILER DEALERSHIP
![]()
Custom Made Trailers
Trust the Pros at NRT Sales LLC to be your go-to source to find the trailer you need. We are a comprehensive provider of various mobile trailer solutions including restrooms, showers, and laundry facilities.
Find quality pre-owned trailers inspected and ready for immediate use.

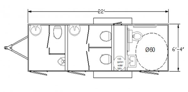
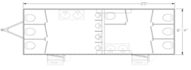
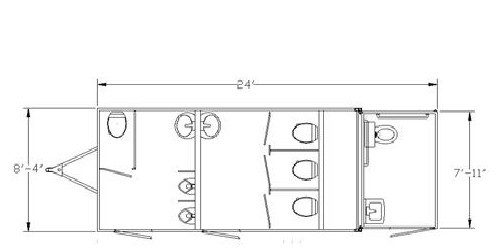
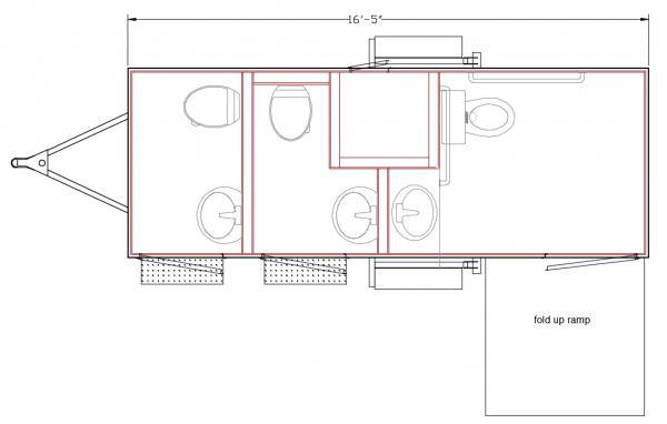
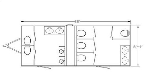
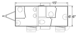
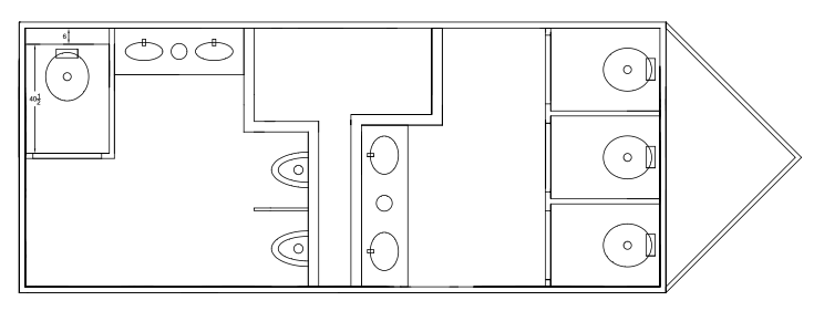
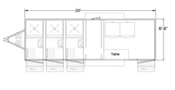
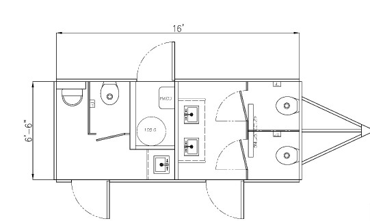
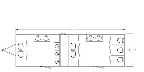
Restroom trailers provide portable sanitation for events and work sites.

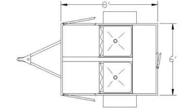
Mobile laundry trailers bring washing services to remote locations.

Shower trailers deliver hygiene facilities for temporary sites.

Combo trailers combine shower, restroom, and laundry in one unit.
NRT Jobsite Specialty Trailers
Built to withstand the toughest environments and heaviest workloads. Designed with industrial-grade materials and precision construction, each trailer delivers exceptional reliability and long-term performance on any job site.
Key Features:
-
Heavy-Duty Frame Construction: Fabricated from high-tensile steel with reinforced welds to endure continuous use in rough terrain.
-
Corrosion-Resistant Coating: Powder-coated finishes and galvanized components protect against rust, moisture, and chemical exposure.
-
High-Load Axles and Suspension: Engineered to absorb vibration and impact, extending the trailer’s lifespan.
All climate: From well below Zero to the Hottest Conditions. The NRT Jobsite Specialty Trailers ..perform all the time!
Industrial-Grade Flooring: Impact and abrasion-resistant floors designed to handle equipment, tools, and heavy materials
Built to Last: From construction sites to mining operations, our Jobsite trailers deliver uncompromising durability and sustained performance, reducing downtime and maintenance costs.

Our expertise extends beyond simple sales transactions, as we provide comprehensive consultations to help determine the exact specifications needed for your particular application, whether you’re operating a construction company requiring heavy-duty equipment haulers or managing a disaster response team needing rapidly deployable mobile facilities.

Custom Trailer Solutions for Every Industry Need
The specialty trailer market has evolved significantly over the past decade, with technological advancements and changing operational needs driving demand for increasingly sophisticated mobile solutions. We’ve positioned ourselves at the forefront of these developments, maintaining relationships with leading manufacturers who incorporate the latest materials, safety features, and technological innovations into their designs. From aluminum construction that reduces weight while maintaining strength to advanced hydraulic systems that enable smooth operation of ramps and lift gates, we ensure that our inventory reflects the current state of the art in trailer engineering.


















