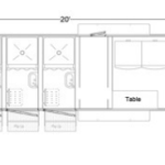
20ft Shower and Laundry Trailer
Contact for Price
- 3 private Shower Rooms with a sink
- 1 Laundry room with 2 stackable Washers and Dryers
- 750 gallon waste tank
- 225 gallon water tank
- AC/Winter Heater Package
- LP On Demand Water heater
- LP Supply Tanks
More New Trailers
