Skip to content
Murfreesboro, TN West Seneca, NY
Menu
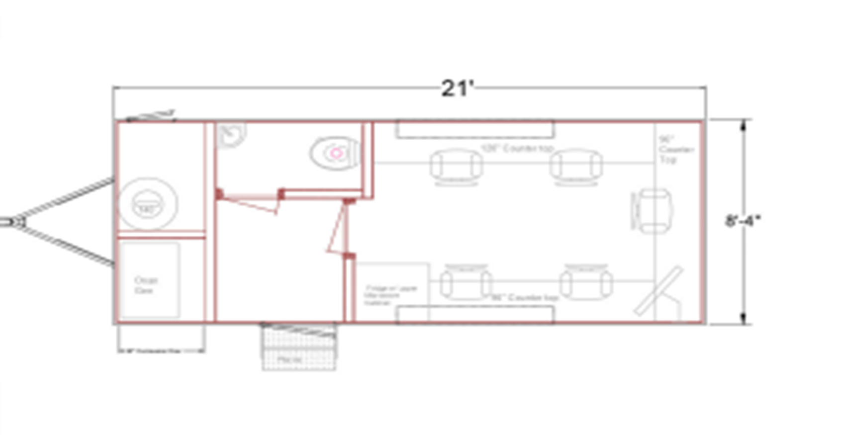
2025 – 21ft COH Self Contained office Trailer with Bathroom

Contact for Price

  • 2025 – 21ft COH Self Contained office Trailer with Bathroom (used 2 times)  East Coast
  • Cold Weather Package
  • Onan Cummins 7000 K with 50 gl Fuel Tank, auto  start built in
  • Office Chairs
  • Linoleum Flooring non slip  one piece   
  • 4  | Aluminum Wheels
  • 1  | Spare Tire
  • 1  | 7.0 CF Refrigerator – Stainless Steel
  • 1  | 1.0 CF Microwave – Stainless Steel
  • 1  | Fire extinguisher
  • Solid Surface work space
  • 2  | Window/slider screen screens
  • 1  | 13,500 BTU AC with Heat Strips
  • Stereo w/ 2 Speakers   
  • 1 | 9v smoke detector
  • 1 | 32″ TV
  • 4  | USB/ GFI  15 amp plugs
  • 1  | Water Saver pedal flush
  • 1  | Sink, auto shut off faucet
  • 140 gallon water tank
  • 450 gallon waste holding tank
Request Quote