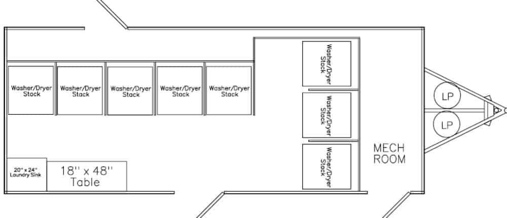
8 Unit Laundry Trailer
Contact for Price
- 21ft Long
- 8 Unit Laundry Trailer
- HD Commercial Washer and Dryers
- 750 Gallon Waste Tank
- LP Water Heater (10gl per min)
- 32 Gallon Pressure Tank
- #100 LP Tanks
- AC
- 18”x 48” Counter Top
- Sink
- Available in 12 weeks.
More New Trailers
