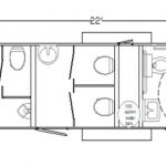
5 Station 22′ ADA Restroom Trailer with Utility Room
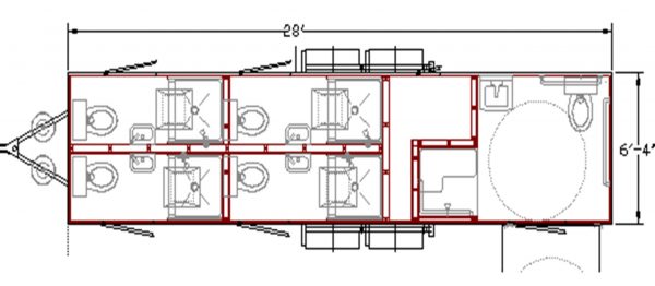
5 Station 28′ Private Combo Trailer
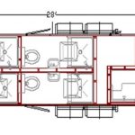
5 Station
