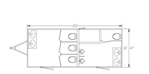
6 Station 20′ Semi-Private Restroom Trailer
6 Station 16′ WB Restroom Trailer
6 Station 16′ x 6.5′ Restroom Trailer
6 Station 20′ WB Restroom Trailer
6 Station
